Właściwe zaszalowanie stropu jest kluczowym etapem w budowie, który wymaga zastosowania odpowiednich materiałów oraz precyzyjnych kroków. Bez względu na to, czy pracujesz nad małym projektem, czy dużą konstrukcją, dobór odpowiednich technik i narzędzi może znacząco wpłynąć na stabilność i trwałość stropu. W artykule omówimy, jak uniknąć najczęstszych błędów oraz jak oszczędzać na materiałach, aby proces szalowania był zarówno efektywny, jak i bezpieczny.
Ważne jest, aby przed przystąpieniem do pracy wyznaczyć poziomy i rozmieścić stemple, co stanowi fundament dla dalszych działań. Odpowiednie deskowanie, w zależności od rozmiaru projektu, może przyczynić się do sukcesu budowy. W tym artykule znajdziesz praktyczne porady, które pomogą Ci w prawidłowym szalowaniu stropów. Kluczowe informacje:- Zaszalowanie stropu wymaga wyznaczenia poziomów i rozłożenia stempli.
- Dla małych powierzchni sprawdza się tradycyjne deskowanie, a dla większych - systemy szalunkowe.
- Deskowanie stropu monolitycznego rozpoczyna się od zbicia deskowania w tarcze o szerokości od 0,6 m do 0,8 m.
- Stosuje się deski o grubości 25 mm, co zapewnia odpowiednią wytrzymałość.
- Ważne jest, aby nie usuwać elementów podtrzymujących inne części konstrukcji podczas szalowania.
Jak prawidłowo zaszalować strop, aby uniknąć błędów
Właściwe zaszalowanie stropu jest kluczowe dla stabilności całej konstrukcji. Dzięki odpowiednim technikom i materiałom można uniknąć wielu problemów, które mogą wystąpić podczas budowy. W tym artykule przedstawimy, jak prawidłowo przeprowadzić ten proces, aby zapewnić bezpieczeństwo i trwałość stropu.
Ważne jest, aby przed przystąpieniem do pracy wyznaczyć poziomy i rozmieścić stemple. Dobre przygotowanie to połowa sukcesu. Rodzaj zastosowanego deskowania zależy od wielkości oraz rodzaju stropu, co ma kluczowe znaczenie dla efektywności całego procesu szalowania.
Wybór odpowiednich materiałów do szalowania stropu
Wybór materiałów do szalowania jest niezwykle istotny. Możemy wybierać spośród różnych opcji, takich jak drewno, metal czy tworzywa sztuczne. Każdy z tych materiałów ma swoje zalety i wady, które warto rozważyć przed podjęciem decyzji.
Drewno jest najpopularniejszym materiałem, szczególnie w przypadku małych projektów. Jest łatwe w obróbce i dostępne, ale może być mniej trwałe. Metalowe systemy szalunkowe są bardziej wytrzymałe i idealne dla większych konstrukcji, jednak ich koszt może być znacznie wyższy. Tworzywa sztuczne są lekkie i odporne na warunki atmosferyczne, ale mogą nie być tak solidne jak drewno czy metal w przypadku dużych obciążeń.- Drewno: łatwe w obróbce, dostępne, ale mniej trwałe.
- Metal: wytrzymałe, idealne dla dużych projektów, wyższy koszt.
- Tworzywa sztuczne: lekkie, odporne na warunki atmosferyczne, ale mniej solidne.
Krok po kroku: proces szalowania dla różnych typów stropów
Proces szalowania stropu można podzielić na kilka kluczowych etapów. Pierwszym krokiem jest wyznaczenie poziomów i rozmieszczenie stempli, które będą podtrzymywać deskowanie. Następnie przystępujemy do montażu deskowania, które powinno być solidne i stabilne.
W przypadku stropów monolitycznych, deskowanie rozpoczyna się od zbicia deskowania w tarcze o szerokości od 0,6 m do 0,8 m z desek o grubości 25 mm. Dla stropów prefabrykowanych proces może wyglądać nieco inaczej, ponieważ często wykorzystuje się gotowe elementy, które wymagają jedynie odpowiedniego umiejscowienia i zabezpieczenia.Ważne jest, aby zachować ostrożność i nie usuwać elementów podtrzymujących inne części konstrukcji. Każdy etap powinien być dokładnie przemyślany, aby zapewnić odpowiednią wytrzymałość i bezpieczeństwo całej konstrukcji.
Jak oszczędzać na materiałach podczas szalowania stropu
Oszczędzanie na materiałach podczas szalowania stropu to kluczowy aspekt, który może znacząco wpłynąć na koszty całego projektu. Właściwe zarządzanie materiałami nie tylko zmniejsza wydatki, ale również minimalizuje odpady. W tym kontekście warto znać kilka sprawdzonych metod, które pozwolą na efektywne wykorzystanie dostępnych zasobów.
Warto pamiętać, że nie zawsze najtańsze rozwiązanie jest najlepsze. Wybór odpowiednich materiałów do deskowania stropu oraz ich efektywne wykorzystanie mogą przyczynić się do oszczędności. Zastosowanie sprawdzonych technik szalowania oraz przemyślane zakupy to klucz do sukcesu.
Praktyczne porady dotyczące efektywnego wykorzystania materiałów
Jednym z najważniejszych kroków w oszczędzaniu na materiałach jest planowanie. Zanim przystąpisz do zakupu, sporządź dokładną listę potrzebnych materiałów. Dzięki temu unikniesz niepotrzebnych wydatków. Materiały do szalowania powinny być dostosowane do konkretnego projektu, co pozwoli na ich maksymalne wykorzystanie.
Innym skutecznym sposobem na oszczędności jest ponowne wykorzystanie materiałów. Jeśli to możliwe, używaj tych samych elementów do różnych projektów. Warto również inwestować w materiały o lepszej jakości, które mogą być droższe, ale z czasem zaoszczędzą pieniądze na wymianach i naprawach. Pamiętaj, że odpowiednie przechowywanie materiałów również wpływa na ich trwałość.
- Sporządź dokładną listę potrzebnych materiałów przed zakupem.
- Ponownie wykorzystuj materiały tam, gdzie to możliwe.
- Inwestuj w materiały o lepszej jakości, aby zmniejszyć przyszłe koszty.
Czytaj więcej: Strop Panelowy SMART: Opinie, Zalety i Wady - Co Musisz Wiedzieć
Bezpieczeństwo podczas szalowania stropu: kluczowe zasady
Bezpieczeństwo podczas szalowania stropu jest absolutnie kluczowe. Właściwe zabezpieczenia i przestrzeganie zasad bezpieczeństwa mogą zapobiec wielu wypadkom na budowie. Każdy pracownik powinien być świadomy ryzyk związanych z tą pracą i stosować się do wytycznych.
Przede wszystkim, przed przystąpieniem do pracy, należy upewnić się, że wszystkie materiały są w dobrym stanie. Techniki szalowania powinny być stosowane zgodnie z zaleceniami producentów, a wszelkie narzędzia muszą być regularnie sprawdzane. Odpowiednie szkolenie pracowników oraz stosowanie środków ochrony osobistej to fundament bezpieczeństwa w każdej budowie.
Jakie są najczęstsze błędy przy szalowaniu stropu?
Podczas szalowania stropu wiele osób popełnia błędy, które mogą prowadzić do poważnych problemów. Jednym z najczęstszych błędów jest niewłaściwe rozmieszczenie stempli. Jeśli nie są one odpowiednio umiejscowione, może to prowadzić do nieprawidłowego podparcia deskowania, co z kolei może skutkować jego deformacją lub nawet zawaleniem. Kolejnym błędem jest użycie materiałów o niewłaściwej jakości, co może osłabić całą konstrukcję.
Innym powszechnym błędem jest brak staranności w wyznaczaniu poziomów. Niedokładne pomiary mogą prowadzić do nierówności stropu, co wpłynie na estetykę i funkcjonalność całej budowli. Ważne jest również, aby nie usuwać elementów podtrzymujących inne części konstrukcji przed zakończeniem pracy. Każdy z tych błędów można łatwo uniknąć, stosując odpowiednie techniki i zachowując ostrożność.
| Błąd | Konsekwencje | Rozwiązanie |
| Niewłaściwe rozmieszczenie stempli | Deformacja lub zawalenie deskowania | Dokładne wyznaczenie miejsc podparcia |
| Użycie materiałów niskiej jakości | Osłabienie konstrukcji | Wybór sprawdzonych materiałów |
| Brak staranności w wyznaczaniu poziomów | Nierówności stropu | Dokładne pomiary przed rozpoczęciem szalowania |
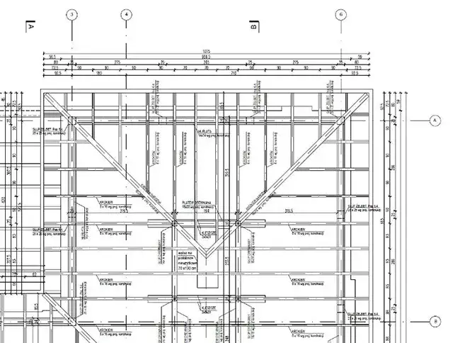
Wizualizacje: przykłady prawidłowego deskowania stropu
Wizualizacje są niezwykle ważne w procesie szalowania stropu, ponieważ pomagają zrozumieć, jak powinno wyglądać prawidłowe deskowanie. Przykłady graficzne oraz diagramy mogą znacznie ułatwić zrozumienie technik szalowania. Dobrze dobrane wizualizacje mogą również zredukować ryzyko popełnienia błędów, ponieważ pokazują, jak powinny być rozmieszczone elementy deskowania oraz jakie materiały należy zastosować.
Warto korzystać z diagramów, które ilustrują różne etapy szalowania, aby zapewnić sobie lepsze zrozumienie procesu. Wizualizacje pomagają nie tylko w nauce, ale także w praktycznym zastosowaniu instrukcji szalowania, co przekłada się na większą efektywność i bezpieczeństwo pracy.
Unikanie błędów w szalowaniu stropu kluczem do sukcesu budowy
Aby skutecznie zaszalować strop, kluczowe jest unikanie najczęstszych błędów, które mogą prowadzić do poważnych konsekwencji. Niewłaściwe rozmieszczenie stempli oraz użycie materiałów niskiej jakości mogą osłabić konstrukcję, a brak staranności w wyznaczaniu poziomów prowadzi do nierówności stropu. W artykule podkreślono, że każdy z tych błędów można łatwo zminimalizować poprzez dokładne pomiary i wybór sprawdzonych materiałów, co z kolei zapewnia stabilność i bezpieczeństwo całej budowli.
Wizualizacje stanowią nieocenione wsparcie w procesie szalowania, ponieważ pomagają zrozumieć, jak powinno wyglądać prawidłowe deskowanie. Przykłady graficzne ilustrujące różne etapy szalowania oraz odpowiednie rozmieszczenie elementów deskowania są kluczowe dla zredukowania ryzyka popełnienia błędów. Dzięki takim wizualizacjom, proces szalowania stropu staje się bardziej przystępny i efektywny, co przekłada się na sukces całego projektu budowlanego.



