
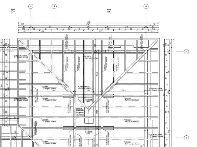
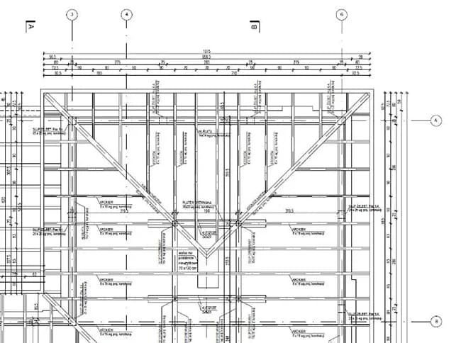
Zbrojenie stropu monolitycznego – jak prawidłowo rozmieścić pręty?
Zrozum, jak prawidłowo zbroić strop monolityczny. Dowiedz się, co ile pręty i jakie są wymagania projektowe dla trwałej konstrukcji.
W świecie budownictwa stropy odgrywają kluczową rolę, a ich właściwy dobór i wykonanie mogą znacząco wpłynąć na trwałość oraz bezpieczeństwo budynków. W tej kategorii znajdziesz szereg artykułów dotyczących różnych rodzajów stropów, ich zastosowań oraz technik montażu. Omówimy zarówno stropy betonowe, drewniane, jak i nowoczesne rozwiązania, które zyskują na popularności. Nasze teksty są napisane w przystępny sposób, aby każdy mógł zrozumieć zawiłości budowlane. Zapraszamy do lektury, aby poszerzyć swoją wiedzę i odkryć, jak ważne są stropy w procesie budowy. Znajdziesz tu praktyczne porady oraz inspiracje, które pomogą Ci w Twoich projektach budowlanych.

Zrozum, jak prawidłowo zbroić strop monolityczny. Dowiedz się, co ile pręty i jakie są wymagania projektowe dla trwałej konstrukcji.

Porównaj strop SMART i TERIVA, aby dowiedzieć się, który z nich zapewnia lepszą izolację akustyczną, oszczędności i szybszy montaż. Wybierz mądrze!

Zrozum, jak strop Teriva i żebra rozdzielcze wpływają na bezpieczeństwo konstrukcji. Dowiedz się, co ile żebro rozdzielcze jest potrzebne!

Sprawdź, jaką wytrzymałość ma strop kleina i jakie czynniki wpływają na jego obciążenie. Kluczowe informacje dla budownictwa i projektów.

Ile stali na m2 stropu monolitycznego? Poznaj kluczowe czynniki wpływające na wybór stali zbrojeniowej i uniknij kosztownych błędów w budowie.

Strop co to? Dowiedz się, jak to narzędzie do ostrzenia ostrzy wpływa na ich jakość i trwałość. Sprawdź, jakie rodzaje stropów są dostępne!

Porównaj koszty stropów drewnianych i betonowych. Dowiedz się, który materiał jest bardziej opłacalny i jakie czynniki wpływają na wybór stropu do domu.

Dowiedz się, po jakim czasie można rozszalować strop oraz jakie czynniki wpływają na czas schnięcia betonu, aby zapewnić trwałość konstrukcji.

Wybierz odpowiednie belki na strop drewniany 7m, aby zapewnić trwałość i bezpieczeństwo konstrukcji. Sprawdź, jakie materiały i wymiary są najlepsze!

Wybierz najlepszy styropian na strop poddasza nieużytkowego. Sprawdź, jakie opcje izolacji zapewnią optymalną efektywność energetyczną i komfort termiczny.

Zastanawiasz się, jakie belki na strop drewniany 4m wybrać? Sprawdź najlepsze opcje, wymiary i porady ekspertów dla bezpieczeństwa i trwałości konstrukcji.

Wybierz najlepszy styropian na ocieplenie stropu piwnicy. Dowiedz się, który materiał zapewni skuteczną izolację i ochronę przed wilgocią.

Wybór stropu w domu z poddaszem użytkowym jest kluczowy. Sprawdź, jaki strop będzie najlepszy, uwzględniając lekkość, funkcjonalność i estetykę.

Zastanawiasz się, jaki strop najtańszy wybrać? Porównaj koszty i materiały budowlane, aby znaleźć najlepsze rozwiązanie dla swojego domu.

Wybór odpowiedniego dwuteownika do podparcia stropu jest kluczowy dla bezpieczeństwa konstrukcji. Sprawdź, jakie czynniki warto wziąć pod uwagę!

Wybierz odpowiedni drut na strop, aby zapewnić solidną konstrukcję. Dowiedz się, jak dobrać średnicę i materiały budowlane do wzmocnienia stropu.

Zastanawiasz się, jaki beton na strop b20 czy b25 wybrać? Poznaj kluczowe różnice, zastosowania i wybierz najlepszą opcję dla swojej konstrukcji.

Wybierz odpowiedni beton na strop monolityczny. Dowiedz się, jakie klasy betonu i zbrojenie zapewnią trwałość i bezpieczeństwo Twojej konstrukcji.

Dowiedz się, jak zrobić strop na poddaszu, unikając najczęstszych błędów budowlanych. Poznaj kluczowe materiały i metody, które zapewnią trwałość i bezpieczeństwo.

Poznaj kluczowe informacje na temat grubości stropów w budownictwie. Dowiedz się, jaka grubość stropu jest odpowiednia dla Twojego projektu budowlanego.

Dowiedz się, jak zaszalować strop, unikając najczęstszych błędów. Poznaj techniki, materiały i oszczędności, które zapewnią trwałość Twojej konstrukcji.

Dowiedz się, jak zrobić strop drewniany, unikając najczęstszych błędów w budowie. Poznaj materiały, rodzaje stropów i kluczowe aspekty izolacji.

Wzmocnienie stropu betonowego to klucz do bezpieczeństwa i trwałości budynku. Sprawdź sprawdzone metody, które pomogą uniknąć kosztownych napraw.

Zabezpiecz strop przed deszczem, korzystając z membran dachowych i folii wodochronnych. Dowiedz się, jak skutecznie chronić swój dom przed wilgocią.

Skuteczne metody, jak wygłuszyć strop drewniany, aby zredukować hałas. Poznaj najlepsze materiały i koszty związane z izolacją akustyczną.